AT Lapata Suites
Situación
Trujillo, Cáceres
Programa
Apartamentos turísticos
Superficie
235,85 m2
Año
2023-2024
Tipo
Encargo privado
Estado
Finalizado
Arquitecto Técnico
Jorge Peña Borreguero
Cliente
Privado
Fotografía
Juanca Lagares
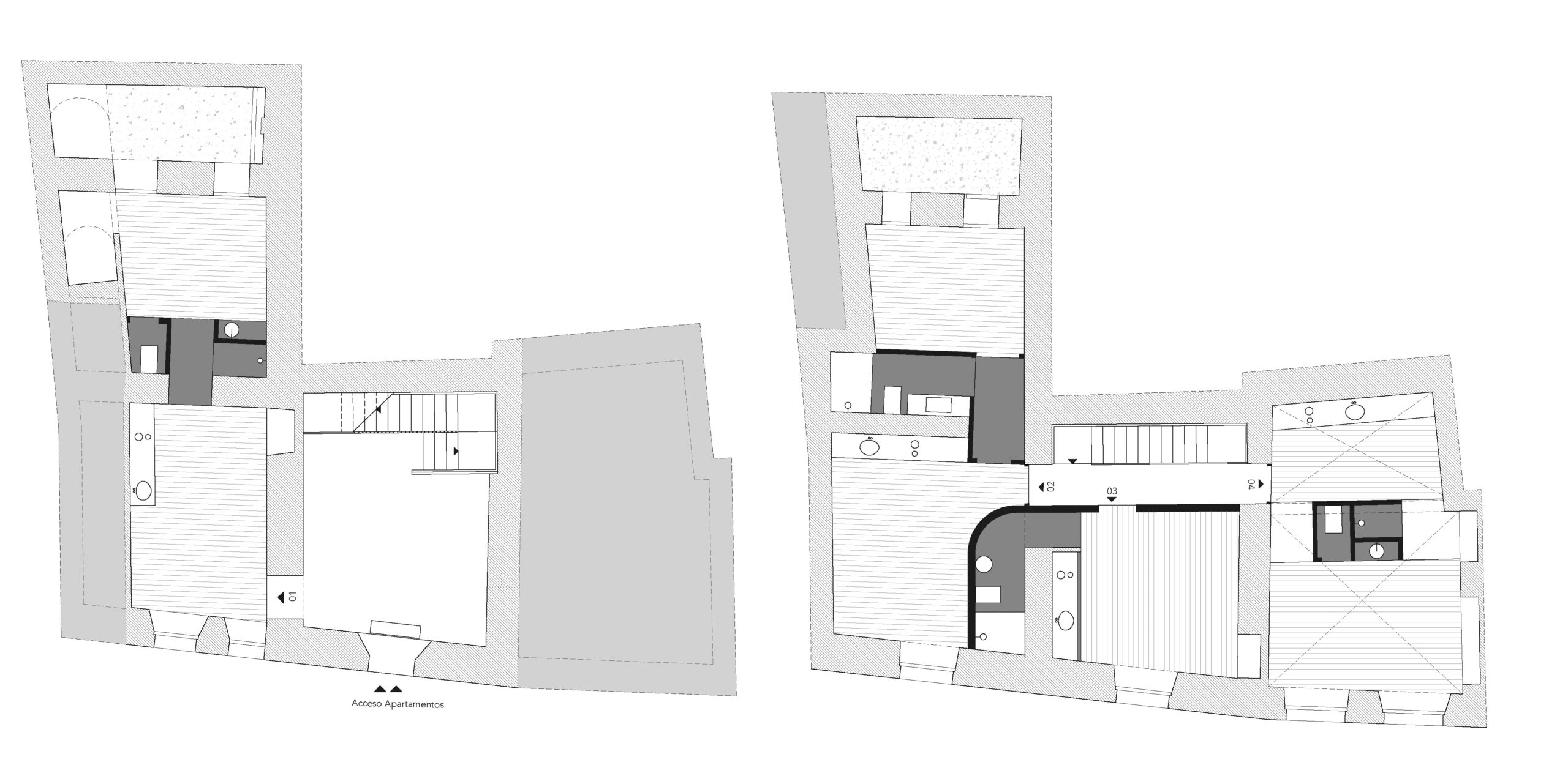
La conexión y posterior rehabilitación de un antiguo bar, -conocido como La Pata-, y la vivienda ubicada en la planta inmediatamente superior, dan lugar a cuatro apartamentos turísticos: LAPATA Suites. Situados en el casco histórico de Trujillo (Cáceres), tanto el bar como la vivienda – inicialmente desconectados- forman parte de un edificio residencial conjunto, compartiendo ésta última las zonas comunes con más viviendas. Ante ello, la primera actuación pasa por unificar e independizar el acceso y conectar ambas plantas.
Se designa como único y principal acceso el de planta baja, independiente del resto de viviendas, y se incorpora una nueva escalera en la estancia central. De este modo se reduce al mínimo los espacios servidores, optimizando la superficie disponible para los distintos apartamentos.
Los muros de piedra existentes marcan el ritmo y la distribución de los diferentes apartamentos, correspondiéndose las estancias de éstos (salón-cocina o dormitorios) con las delimitadas por los muros estructurales. Lejos de estancias similares, estos muros delimitan espacios con características diferentes: estancias con proporciones distintas, forjados diferentes (contando una de las estancias con bóvedas de arista inicialmente ocultas) etc. Por ello, la respuesta a cada uno de estos espacios será específica y singular, aunque sin tratar de perder la armonía del conjunto.
Así, en tres de los apartamentos, las piezas húmedas se adosan longitudinalmente a los muros de carga. Se concentran de este modo estructura e instalaciones al mismo tiempo que se generan espacios más diáfanos. Estos “añadidos” al muro se diferencian de manera clara mediante diferentes estrategias: empleo del color o introducción de elementos ajenos como la curva.
No ocurre lo mismo en el apartamento cuatro, cuyos muros encierran dos bóvedas de arista. Con el fin de poner en valor ambas bóvedas, el núcleo húmedo se dispone en el centro de la estancia, sin llegar al techo ni tocar las paredes, entendiéndose como un dispositivo-mueble que permite organizar el apartamento sin perder la espacialidad de la pieza. Todas las funciones giran en torno a este nuevo elemento donde, y de manera reiterada, el color aparece como herramienta para distinguir lo nuevo de lo preexistente.
Del mismo modo, y con el fin de aprovechar el espacio en aquellas estancias de tamaño más reducido, se lleva a cabo una reconceptualización de la distribución interior de los baños. En dos de ellos, las funciones aparecen separadas de modo que usos que tradicionalmente se han entendido juntos, aparecen ahora como funciones independientes. Se permite así que todas las cabinas (lavabo, inodoro y ducha) puedan usarse simultáneamente.
Todo ello da lugar a una rehabilitación “a medida”, donde no se imponen soluciones globales, sino que cada espacio dicta sus reglas de juego.









