Salón Social del Club Náutico de Sevilla 2
Situación
Paseo de los Remeros SN, Sevilla
Programa
Cultural
Año
2023
Superficie
1.847 m2
Tipo
Encargo privado
Estado
Finalizado
Arquitecto técnico
Manuel Uwaldo Espino Pérez
Cliente
Privado
Fotografía
Fernando Alda
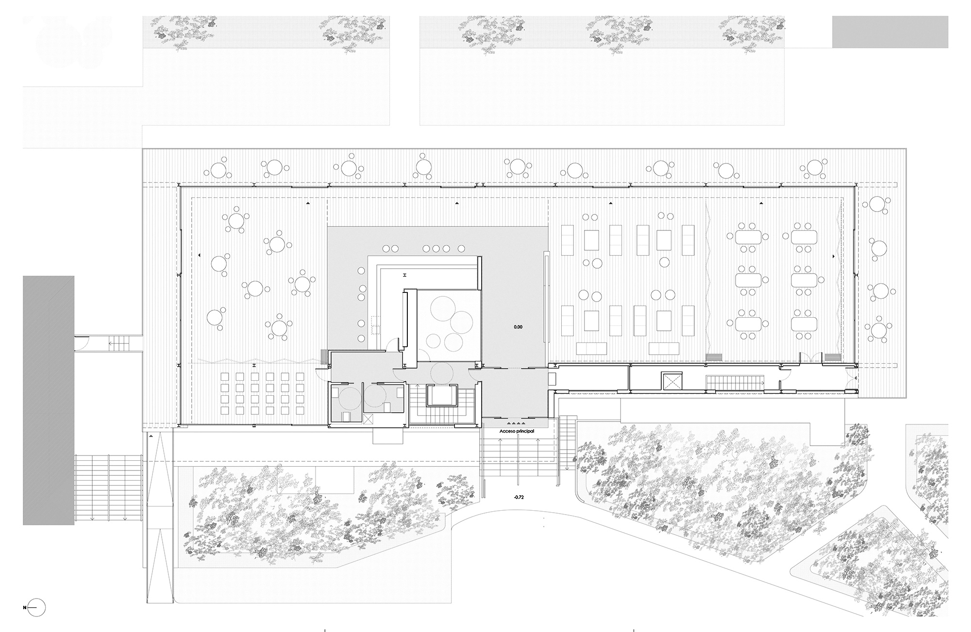
El edificio a intervenir, Sede Social del Club Náutico, fue proyectado por el arquitecto Antonio de la Peña en 1966 junto con otras edificaciones del Club que todavía hoy se mantienen. La intervención que se lleva a cabo pasa por un análisis previo de sus planos originales. En ellos, la planta primera – de acceso – consiste en un espacio totalmente diáfano y polivalente articulado en torno a un patio central, hoy desaparecido. Mediante ventanales que van de suelo a techo ubicados en gran parte del perímetro y continuados por una terraza de considerables dimensiones, el espacio principal se abre hacia el río Guadalquivir. No obstante, lo más característico del inmueble es su extensa cubierta de hormigón en zigzag, la cual posibilita la existencia del mencionado espacio diáfano al mismo tiempo que su marcada direccionalidad refuerza, aún más, la mirada hacia el río.
Previo a la rehabilitación, nos encontramos un edificio notablemente transformado por las necesidades más inmediatas surgidas a lo largo de los últimos años. El patio original había sido colonizado por aseos y la planta había sido tabicada en espacios más pequeños, perdiendo su carácter abierto. Ante ello, se propone, por un lado, poner en valor la concepción inicial del edificio y, por otro, adaptar el inmueble a las exigencias contemporáneas.
Se procede así a una intervención ‘quirúrgica’. Se recupera el patio original como elemento articulador. El acceso, la barra-cafetería y los nuevos aseos giran en torno a éste, conformando una nueva zona ordenada alrededor del mismo marcada visualmente por una alfombra pétrea – que contrasta con el resto del pavimento – así como por un techo de listones de madera que señala un carácter más recogido. Se eliminan las particiones innecesarias recuperando el espacio diáfano. Por otro lado y con el fin de volver a dotar de actividad a la terraza – hasta ahora sin uso- se elimina la jardinera y se dispone en su lugar una barandilla de vidrio que aumenta el ancho de la misma. En cuanto a la relación exterior-interior, ésta se diluye empleando el mismo pavimento tanto fuera como dentro, apoyada por la cubierta existente en zig-zag que se extiende hacia el río.
Todo ello juega a favor de recuperar y diseñar un único espacio salón-terraza, exterior-interior, donde el patio y todo lo que a su alrededor sucede supone un ‘hito’ dentro de la gran planta diáfana.














